关键字搜索:

房山窦店独院厂库房出租

点击量:821次 置顶 发布时间:2013/8/6
信息描述
信息标题: 房山窦店独院厂库房出租 信息编号: 2013/8/6120442781
信息类型: 办公/ 独院/ 库房/ 厂房/ 类型不限 参考价格: 面议
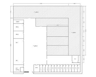
区域位置: 北京 | 房山 面积描述: 4000 M2
联系方式: 13910429989
发布期限: 正常 还剩0天
占地总面积7000㎡(10亩多地),其中厂房面积是4000㎡;有动力电,独立变压器(200KW一组)。厂房内可办公,有员工宿舍、食堂;有太阳能淋浴,冬天有锅炉暖气,配有宽带

联系时请您一定说明是在中国厂库房网上看到的此信息,此信息若过期,请予下方留言,谢谢合作!

厂房 库房 厂房出租 库房出租 北京厂房出租 北京库房出租 厂库房出租 厂库房出售 独院出售 土地出让 中国厂库房网

图片展示
网友评论
您好!您未登录,请登录后发表评论![ 登陆 ]
验证码: 
关于我们 | 广告布局 | 免责声明 | 网站地图 | 联系我们 | 服务条款 | 友情链接申请
  • 广告刊登电话:13910429989   24小时电话:13910429989
  • 版权所有:厂库房网(www.zgckf.com) CopyRight©2009-2020
  • 网站备案:京ICP备09092624号-1
  • 关闭
    网站广告部
    点击这里给我发消息
    网站管理员
    发布房源|需求